~WAILEA VILLAS~
久居西鷹跡町(久居駅)2階建
おすすめコメント
~WAILEA VILLAS~久居西鷹跡
誠之小・久居中近くお子様も安心の立地♪
周辺商業施設も充実
■名古屋線 久居駅徒歩10分の立地。閑静な住宅地。
■敷地約48坪・駐車スペース3台(車種による)
■建物約39坪・平成16年築
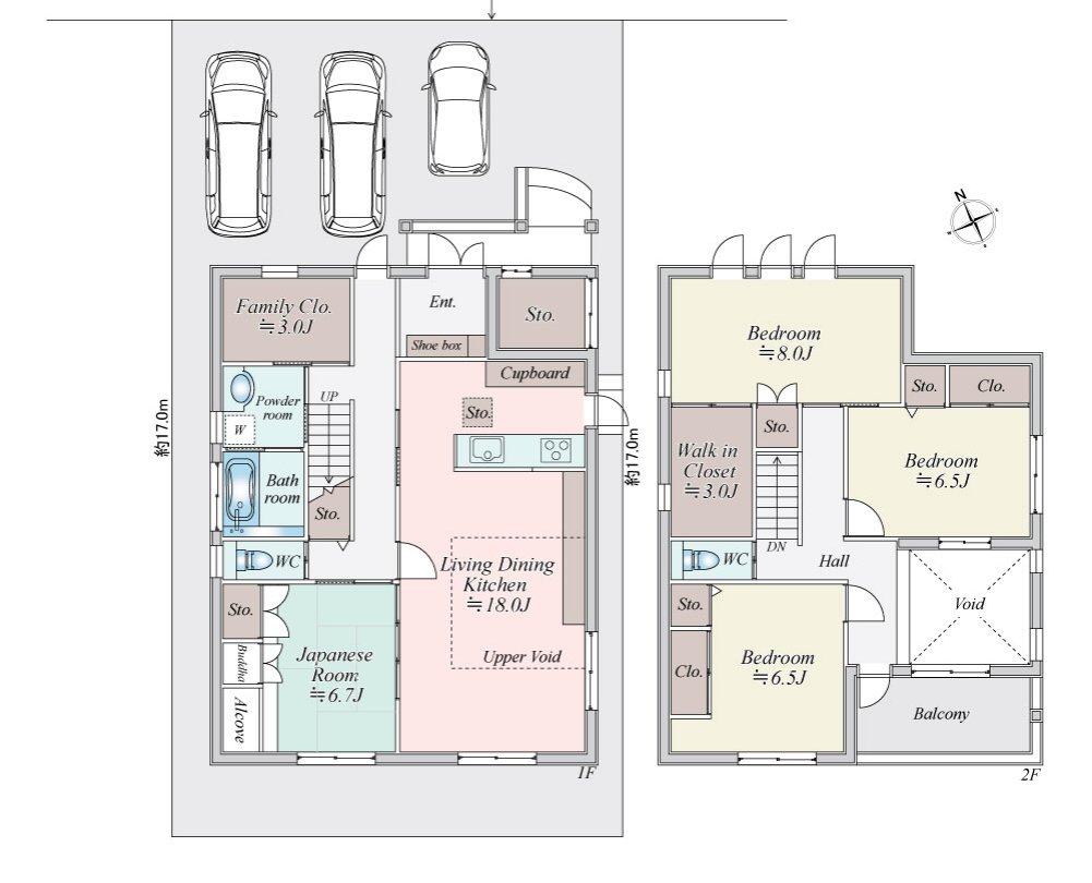
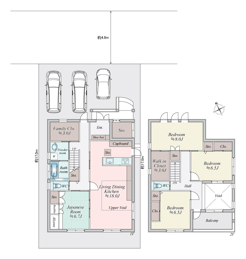
□4LDK+2S、リビング吹抜けのゆとりの空間
■外部収納・ファミリークローゼット等収納豊富
【REFORM DETAILS】
□リビングクロス一部張替
□和室襖張替
□1階・2階トイレ、洗面化粧台交換
※2026年5月完了予定
◇メーターモジュールのゆとりの間取
◇約18畳のLDK+約6.7畳和室
◇リビングは開放的な吹き抜け空間
◇2階各洋室は約6.5帖×2部屋、主寝室8帖+WCLで広々スペースを確保
◇1階の外部収納・ファミリークロゼットは多目的な収納に利用可
内覧予約随時受付中、お気軽にお問合せくださいませ♪
物件概要
価格 |
販売準備中 |
所在地 |
三重県津市久居西鷹跡町560番 |
土地面積 |
160.08m²(48.42坪) |
建物面積 |
132.20m²(39.99坪) |
交通 |
近鉄名古屋線 久居駅 /約1,700m |
構造 |
木造スレート葺2階建 |
種類 |
居宅 |
築年月 |
平成 16年 7月 |
都市計画 |
市街化区域 |
建ぺい率・容積率 |
60% / 200% |
その他法令 |
景観法・水防法・文化財保護法・都市再生特別措置法 |
用途地域 |
第2種中高層住居専用地域 |
設備 |
公営水道・公共下水・オール電化(都市ガス本管有) |
道路 |
北側 公道約4.8mに約9.45m接する |
備考 |
◇太陽光パネル、蓄電池 【REFORM DETAILS】 ▪リビングクロス一部張替 ▪和室襖張替 ▪1階・2階トイレ、洗面化粧台交換 ※2026年5月完了予定 |
取引態様 |
売主 |
物件ギャラリー
お気軽にお問い合わせください
物件の詳細につきましては、下記よりお気軽にお問い合わせください。
tel.059-399-7775
平日・土曜日 9:00~18:00 / 日曜日・祝日 9:00~17:00(水曜定休)












